Brandsikre skabe typeafprøvet iht. EN 14470-1 model S90.196.060.075.FDAO
Lys grå (RAL 7035), udstyret med 4 x skuffe (rustfrit stål 1.4301)
Certificering
- Brandmodstandsdygtig i 90 minutter
- typeafprøvet iht. EN 14470-1
- DIN EN 16121/16122 overensstemmelse
- CE overensstemmelse
Funktion / konstruktion
- Robust konstruktion og levetid: stabilt yderhus af pulverlakeret finstålplade, 3-dobbelt dørhængsel, komplet låsemekanisme og sikkerhedselementer monteret uden for opbevaringsrummet for at beskytte mod korrosion
- Pladsbesparende Foldedør: lav pladsbehov foran skabet, når døren er åben
- Let betjening: registrering af personer via sensoren inden for 2 sekunder
- Komfortabel og sikker: Dørene åbner fuldautomatisk inden for ca. 5 sekunder. Sensorer registrerer personer og holder dørene åbne
- Altid lukket: Hvis sensoren ikke længere registrerer personen, lukkes døren automatisk efter ca. 30 sekunder.
- Ingen uautoriseret brug: Dør kan låses med profilcylinder (kan integreres i låsesystem)
- Enkel justering: integrerede justerbare fødder til udligning af ujævne gulve
- Ventilation: integreret ventilationssystem til tilslutning (NW 75) til et teknisk Afgangsluft-system
Best.nr.
30317-001-33700
Leveringen finder sted med pakker eller via spedition af stykgods, som regel inden for en uge efter den aftalte klargøring. Ved forsendelse med specialspedition (til sikkerhedsskabe og arbejdspladser med farlige stoffer) finder leveringen sted på almindelig vis, når alle nødvendige leveringsinformationer (f.eks. tjeklister) foreligger, og i gennemsnit inden for 10 arbejdsdage efter den aftalte klargøring. Du finder den nøjagtige leveringsperiode (klargøringstid + leveringstid) i den detaljerede ordrebekræftelse eller du kan bede om den som en rettesnor hos din kontaktperson hos asecos.

LEVERINGSOMFANG VED FRI LEVERING (LFH):
- Levering inklusive emballagemateriale indtil bag den første lukkede dør i stueplan
- på engangspalle (uden forcering af trin, trapper, etc.)

LEVERINGSOMFANG VED FRI LEVERING TIL ANVENDELSESSTED (LFV)
omfatter derudover:
- - Leveringen adviseres af asecos
- - anbefales stærkt, hvis man ikke selv har uddannet personale til rådighed
Dine fordele:
- opstilling på det ønskede sted i bygningen (mulighed for anbringelse skal på forhånd
klarlægges i et transportspørgeskema, der skal udfyldes af kunden) - justering af skabet
- medtagelse af emballagematerialet
Optionen inkluderer ikke:
- - Indsættelse af kran eller lignende
- - En afsætningstid på mere end 30 minutter
… at vores eksperter altid står klar til at rådgive dig?
Kontakt os i dag. Enten på telefon +49 6051 9220-0, via e-mail til info@asecos.com eller i livechatten – vi er her for dig.
Kontakt os i dag. Enten på telefon +49 6051 9220-0, via e-mail til info@asecos.com eller i livechatten – vi er her for dig.
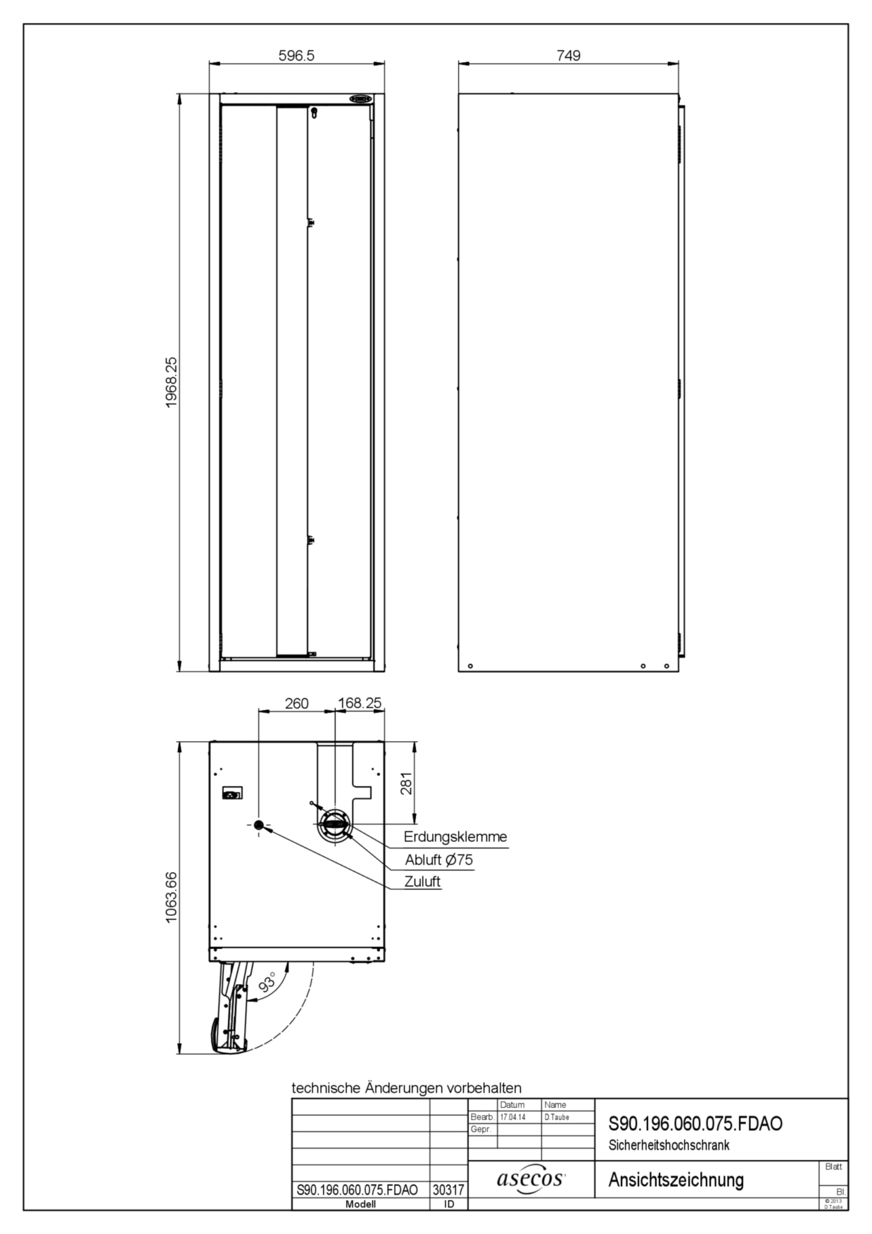
| Mål B x D x H udenfor | 596 x 749 x 1968 mm mm |
| Mål B x D x H indvendigt | 450 x 657 x 1742 mm |
| Dybde med åbne døre | 1.064,00 mm |
| Nettovægt artikelkonfiguration | 346,50 kg |
| Brandmodstandsdygtighed | 90 minutter |
| CE overensstemmelse | Ja |
| GS certificeret | Nej |
| I henhold til standard | EN 14470-1 |
| I henhold til standard | EN 16121/16122 |
| Automatisk dørlukning | Nej |
| Dørlåseanlæg | Nej |
| Døråbningsvinkel | 93 ° |
| afgangslufttilslutning | 75 DN |
| Differenstryk ved 10 gange EK5/AK4 | 5 Pa |
| min. afgangsluft 10 gange | 5 m³/h |
| Drift med strømforbrug | 0,35 W |
| Nominal spænding | 230 V |
| antal lagerniveauer | 4 stykke |
| Bæreevne udtrækskar | 25,00 kg |
| Volumen udtræksskuffer | 5,50 Litre |
| Total lagerkapacitet 1 l laboratorieflasker glas | 68 stykke |
| Total lagerkapacitet 1 l laboratorieflasker PE | 68 stykke |
| Total lagerkapacitet 2,5 l laboratorieflasker glas | 36 stykke |
| ecl@ss 14.0 | 40-06-01-09 |
| PIM_UNSPSC | 24112402 |
| Toldtarifnummer | 94032080 |
| GTIN | 4054923137066 |